
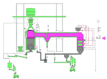
图1干熄焦余热发电系统流程图
利用惰性气体冷却焦炭,回收熄焦气中的热能来生产蒸汽和发电,并用于集中供热和/或洗精煤余热。
关键技术
(1)余热锅炉的密封,特别是受热面的防磨损问题;
(2)余热锅炉受热面的烟气防腐问题。
适用的技术条件 | 发展现状 | 建设规模 | 投资额 (万元) | 节能量(tce/a) | 减排量(tCO2/a) | 单位节能/减排量(gce/kWh) | 投资回收期(年) |
商业化 | 45万t/a焦炭 | 35亿日元 | 5404万kW h/a | 120kWh/t焦炭 | 3.6年 |
| 发改委气候司谢极谈碳市场:服务于减碳 而… | |
| 紧跟政策引领,把握林业碳汇产业发展机遇 | |
| 【绿石碳视野】企业碳管理案例分析(七) | |
| 【绿石碳视野】企业碳管理案例分析(五) | |
| 【绿石碳视野】企业碳管理案例分析(三) | |
| 【绿石碳视野】企业碳管理案例分析(二) |
![]() |
上海碳交易履约工作顺利完成 |
| 为进一步加强碳排放控制与管理,上海市在试… |
![]() |
福建碳市场首个履约期将于6月30… |
| 记者从省发改委了解到,福建省碳市场自去年1… |
![]() |
广东碳排放配额履约工作顺利完成… |
| 根据《广东省碳排放管理试行办法》(广东省… |
![]() |
发改委气候司谢极谈碳市场:服务… |
| “第八届地坛论坛”在北京举行。国家发展和… |
![]() |
美加州州长力挺《巴黎协定》 已… |
| 美国总统特朗普6月1日宣布退出《巴黎协定》… |
![]() |
广东:珠三角3年内建成国家森林… |
| 森林城市群建设时间表出台 参与《规划》制定… |